Agence d’architecture
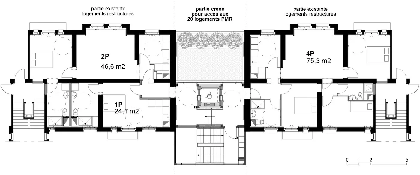
Le projet concerne la réhabilitation thermique « Plan Climat » de 383 logements HBM occupés à Paris 19ᵉ – Résidence Solidarité. Les travaux incluent le remplacement des menuiseries, l’isolation thermique intérieure avec traitement des ponts thermiques, la mise en place d’une VMC hygro B et le raccordement à la CPCU. Une cage d’escalier avec ascenseur est créée, 20 logements sont accessibles PMR et l’ensemble des logements, parties communes et locaux vélos et tri sont rénovés. Travaux en site occupé avec logements relais. Certification BBC Plan Climat Cerqual PH&E.
Maîtrise d’ouvrage
Paris habitat
Maîtrise d’œuvre
Apia Architecture mandataire
Partenaires
IPC BET • Espace Temps BET thermique
Lieu
2-12 rue de la Solidarité, Paris 19
Surface
20 800 m2 – 6 bâtiments R+6
Coût
12 500 000 €HT
Livraison
2014
 
			 
			 
			Rénovation BBC Plan Climat, Cerqual PH & E
Changement des menuiseries avec remplacement des bâtis
Isolation thermique par l’intérieur et traitement des ponts thermiques
Mise en place de ventilation hygro B
Raccordement CPCU
Consommations en énergie primaire :
348 kWhEP/m².an (étiquette F) avant travaux
93 kWhEP/m².an (étiquette C) après travaux
20 logements accessibles PMR
Construction d’une cage d’escalier avec ascenseur entre pignons de bâtiments existants et restructuration de logements
Surfaces mises aux normes contemporaines
Regroupements et déclassements de logements
Réfection totale
Logements, parties communes, et locaux tri sélectif, vélos et poussettes
Travaux en site occupé
Opération « tiroir » (logements relais)
Certification
Rénovation BBC Plan Climat
Cerqual PH&E
 
			 
			 
			 
			 
			